



En el barrio de Sarriá de Barcelona reformamos íntegramente este ático de 94,00 m2 útiles y una terraza de 26,00 m2.
Si bien el piso tenía una buena distribución general discriminando en dos áreas la zona social y la privada, contaba con una serie de inconvenientes que se destacan a continuación:
En el área social los espacios tienen mala proporción y están muy particionados con poca relación entre los mismos. (Recibidor, Cocina, Sala, Cuarto)
Desaprovechamiento de visuales y accesibilidad a la terraza.
Mal aislamiento acústico entre espacios.
Mal estado o vetustez de ciertos acabados
Mal estado o vetustez de las instalaciones (gas, electricidad, agua)
Mala distribución y disfuncionalidad del baño
VA
Obra: Nueva
Año: 2019-2020
Ubicación: La Plata, Argentina.
Superficie: 190 m2 Cub. + 75 Semicub.
Autores: MAGO (Manuel Garcia Olivares)
Colabradores: Nicolás Perfumo

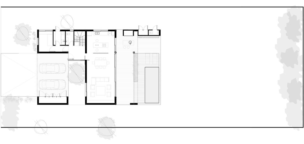
En un barrio privado de la ciudad de La Plata proyectamos esta vivienda unifamiliar cuyo encargo radicaba en el deseo de tener una planta baja social y una planta alta privada con 3 dormitorios.
Nuestra premisa fue ser lo más eficiente y compacto posible logrando el mejor asoleamiento, las visuales al jardín y la ventilación cruzada.
El proyecto es un planta baja social en L articualda por el hall de ingreso y conformada por una zona de servicios y una social que se brinda al jardín y a la mejor orientación. La galería hace de transición con el mismo y se configura, por su transparencia y materialidad, como una ampliación de la sala.
En la planta alta se repite la planta en L generando terrazas en los sectores que abajo son semicubiertos.
La materialidad radica en el hormigón visto, mampostería doble con acabado blanco y aberturas de PVC simil roble.







